Network
Pubblica i tuoi prodotti

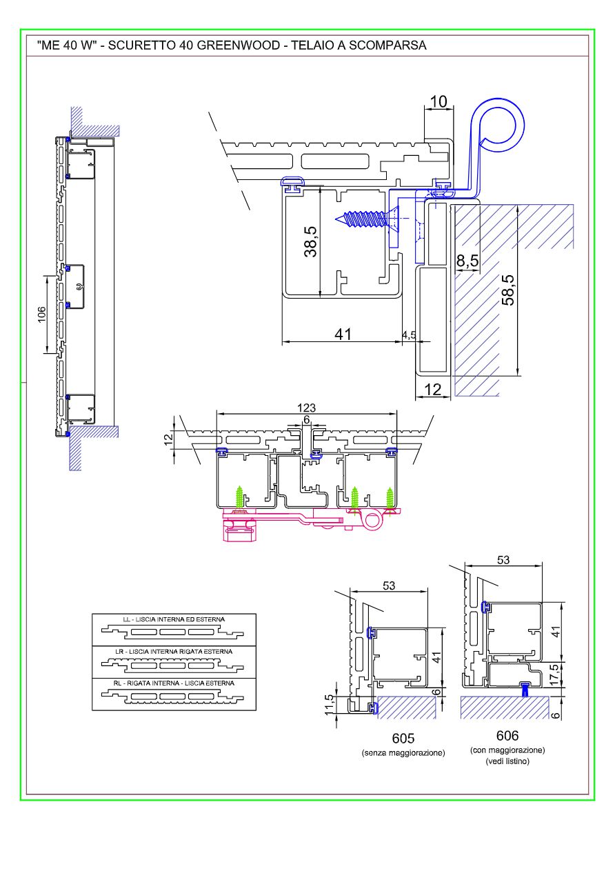
Eurall SCURETTO 40 Scuri in alluminio

Contatta direttamente Eurall
Scopri il Brand

Eurall

Italia
Contatta l'azienda
Sito web
Informazioni

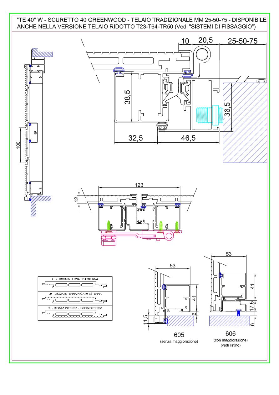
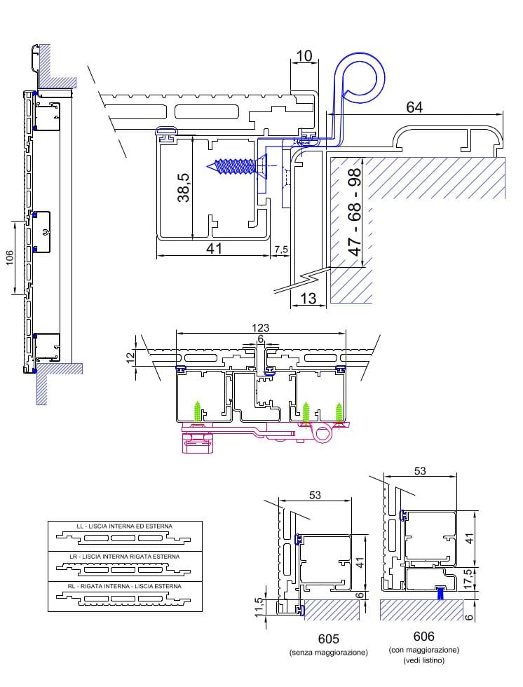
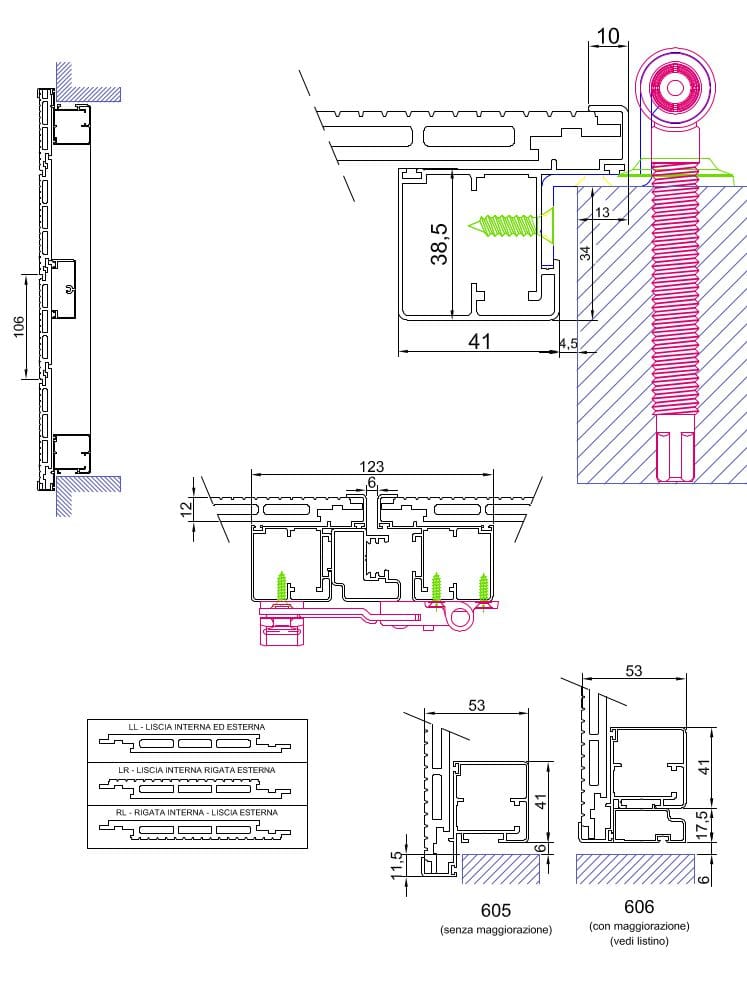
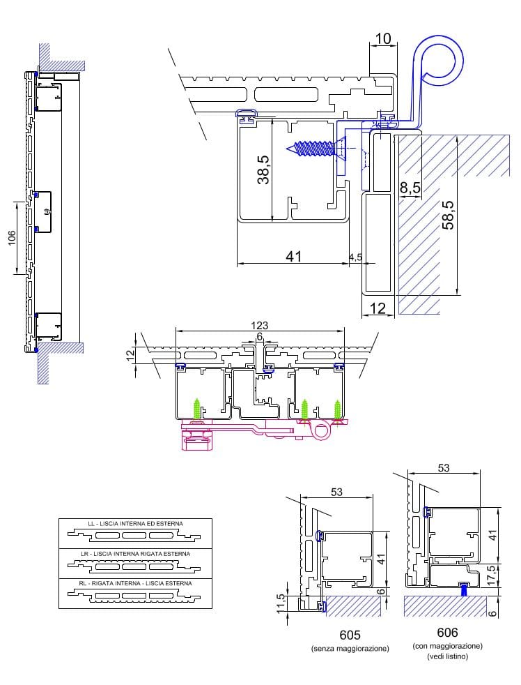
Lo Scuretto 40 Greenwood si distingue per il suo design essenziale e lineare, caratterizzato da una semplicità che si sposa perfettamente con l'ambiente circostante. Realizzato con un particolare legno composito, questo prodotto è frutto di una tecnologia innovativa che utilizza materie prime rigenerate, contribuendo così a preservare le risorse naturali e a ridurre l'impatto sull'ambiente. Questo approccio sostenibile non solo garantisce un'estetica durevole e di qualità, ma anche una coscienza ecologica che rispecchia le esigenze moderne di responsabilità ambientale. Lo Scuretto 40 Greenwood rappresenta dunque una scelta consapevole per coloro che cercano soluzioni eleganti e sostenibili per i loro spazi abitativi o lavorativi.

Maggiori informazioni sono disponibili sul sito del produttore