Network
Pubblica i tuoi prodotti

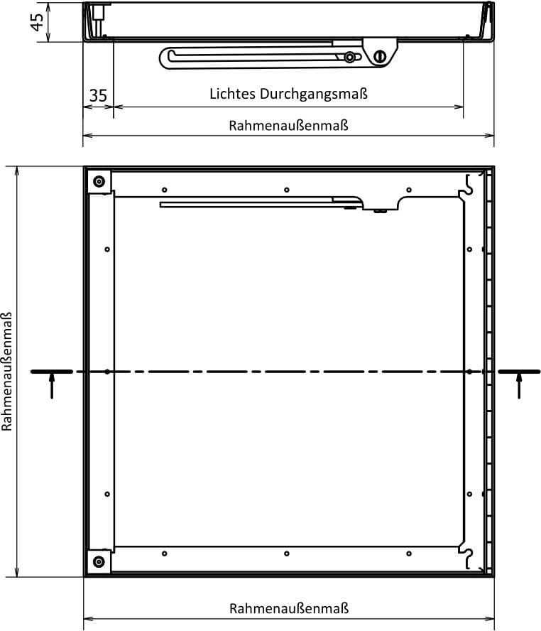
FF SYSTEMS SERIE 4500 Chiusino a pavimento

Contatta direttamente FF SYSTEMS
Consulta le schede tecniche e i listini prezzi FF SYSTEMS
Con il catalogo di Edilportale ottieni informazioni tecniche certificate e puoi confrontare caratteristiche e prezzi dei prodotti in standard ETIM, per computi più precisi.
Scopri il Brand

FF SYSTEMS

Italia
Contatta l'azienda
Sito web
Informazioni

Il chiusino a pavimento Serie 4500 è realizzato con acciaio inox di 2,5 mm. La profondità della vasca è di 40 mm e l'altezza di installazione è di soli 45 mm. Il telaio viene fissato tramite gettata a livello del pavimento.
Successivamente la vasca può essere riempita ed inserita nel telaio. Il coperchio può essere aperto con apposite cerniere fino a 105°. La sicurezza è garantita da un dispositivo anticaduta. La chiusura del chiusino avviene in due punti di serraggio, che servono anche all'apertura tramite chiavi di sollevamento. Il riempimento della vasca è possibile con legno, parquet, pavimenti duri o altri materiali.

Maggiori informazioni sono disponibili sul sito del produttore